[管理コード:I00237] 来住町中古住宅

農免道路に近い築浅美邸のオール電化住宅です

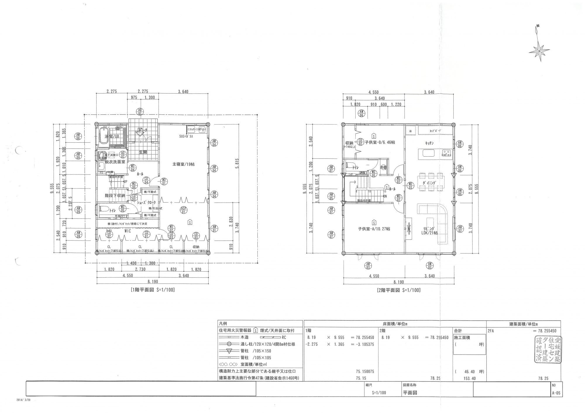
1階主寝室は現在、事務所仕様になっています。
所有者居住中の為、引渡し時期は要相談。内覧は可能です。
南側駐車場部分は告知事項があります。

住所/沿線・交通 価格 駐車場/駐車台数 築年月 間取 物件種別
愛媛県松山市来住町1431-4、1431-3
伊予鉄道横河原線久米 徒歩23分
4,100万円
(消費税なし)
駐車場無料 平成27年07月
(築10年8ヶ月)
3SLDK 一戸建て
(売戸建)

物件写真

物件資料のダウンロードはコチラ
クリックするとPDFデータでダウンロードします

物件詳細

小学校 久米小学校 中学校 久米中学校
建物構造 木造 現況 所有者居住中
土地面積/坪 275.7u (公簿) / 83.4坪 延床面積/坪 153.40u / 46.40坪
私道面積 なし - 建ぺい率/容積率 60% / 200%
土地権利 所有権 都市計画 市街化区域
用途地域 二中高住専 地目 宅地
設備 温水洗浄便座、トイレ2ヶ所、追焚きのう、バス1坪以上、カウンターキッチン、IHクッキングヒーター、食器洗浄乾燥機、収納スペース、ウォークインクローゼット、給湯、室内洗濯機置場、洗髪洗面化粧台、照明器具、電気、上水道、下水道、複層ガラス、エアコン、モニタ付インターホン、ディンプルキー
さらに詳細な情報を表示
その他一時金1 - その他一時金2 -
その他一時金3 - その他一時金4 -
地勢 平坦 国土法 -
セットバック 無し 取引態様 一般媒介
引渡条件/引渡日 相談/- 法令上の制限 地区計画区域
地代(月額) - 借地期間 -
借地保証金 - 借地権利金 -
接道 ニ方(除角地)
(方角:北/道路幅員:5.2m/公私区分:公道/接面:12.7m/位置:なし/舗装:あり) (方角:南/道路幅員:4m/公私区分:私道/接面:12.3m/位置:なし/舗装:あり)

周辺マップ